Dokumentace skutečného stavu budovy – budova Italská

Geodetické zaměření budovy v ulici Italská metodou laserového skenování a zpracování geodetické dokumentace jako podklad pro DPS.

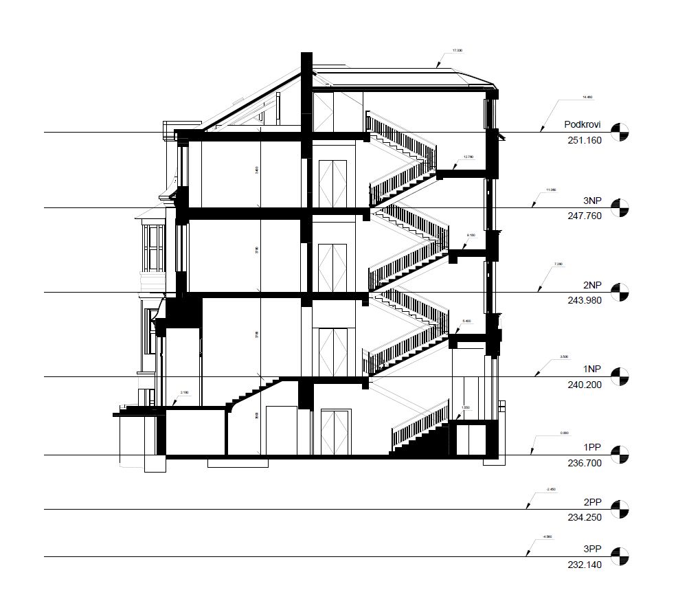
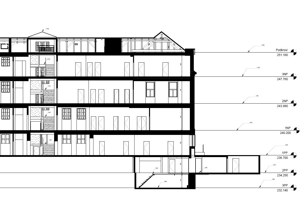
Budova byla původně postavena jako poliklinika zaměstnanců Československých státních drah ve dvacátých letech 20. století. Takže se jedná celkem o moderní budovu. Budova má celkem 5 podlaží, z toho dvě podzemní podlaží a tři nadzemní podlaží. V současné době budova stále slouží jako poliklinika a je zde provozována jak ambulantní, tak lůžková část.

Jako podklad pro 3D model v Autocad Revit posloužilo georeferencované, vyfiltrované a vyčištěné mračno bodů.

Výstupy:

  • Půdorysy jednotlivých podlaží
  • Řezy
  • Pohledy
  • Ortopohledy
  • 3D model Autocad Revit