Dokumentace skutečného stavu budovy – zámek Javorná

Naskenování objektu zámku Javorná vč. jeho nejbližšího okolí a následné zpracování geodetické dokumentace skutečného stavu.
Javorná je barokní zámek. Jde o jednokřídlý zámek s hospodářským traktem a s kostelem svatého Jana Nepomuckého z roku 1729–1730.
3D sken celého objektu vč. nejbližšího okolí - součástí je i detailní zachycení polohy a stavu kostelního mobiliáře (oltář vč. oltářního obrazu, kazatelna se schůdky, zábradlí před oltářem, 2 obrazy svatých na Z a V stěně kostela, varhany na kůru).
Výstupy:
- Polohopis a výškopis dvora
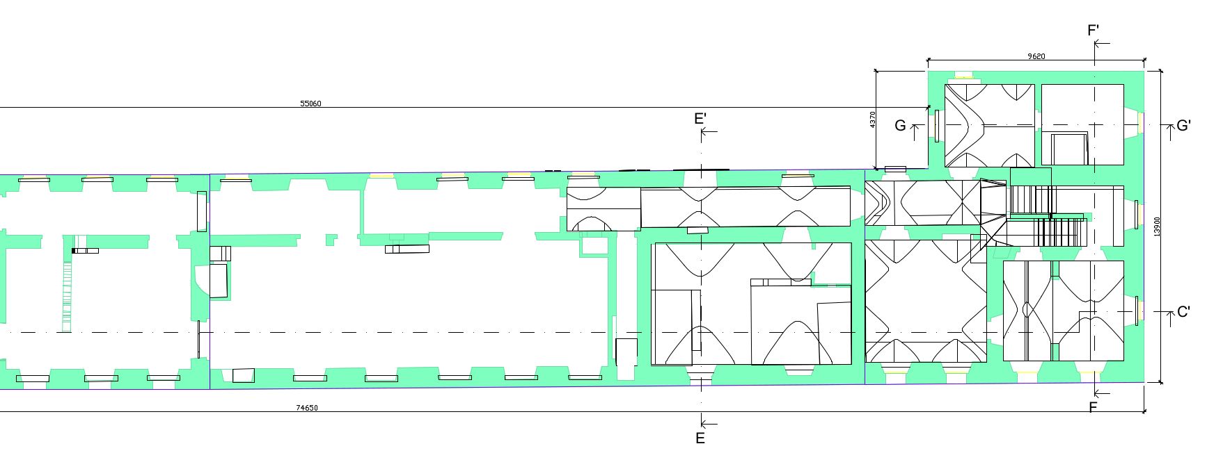
- Půdorysy
- Řezy
- Pohledy
- Ortofoto fasád kostela
- 3D model Autocad Revit
- 360° panoramatické fotografie interiéru kostela






























