Pasport skutečného stavu budovy – magistrát města Frýdek-Místek

Zpracování pasportu budovy, objektů Radniční 1148 a 1147 ve Frýdku-Místku, a to stavební části i všech vnitřních instalací.
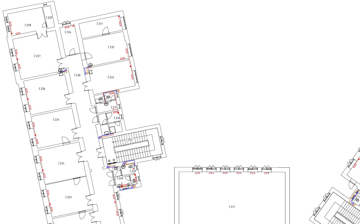
Bylo provedeno skutečné zaměření budovy vnějších rozměrů i vnitřních dispozic metodou přesného laserového skenování. Na základě dat získaných skenováním budovy byly vytvořeny půdorysy, včetně veškerých tras vnitřních instalací vody, kanalizace, elektro silno i slabo proudu, vytápění, vzduchotechniky a klimatizace.
Jedná se o celkem moderní budovu postavenou ve 20. až 30. letech dvacátého století. Budova má celkem 5 podlaží, z toho jsou 3 nadzemní podlaží, podkroví a 1 podzemní podlaží. Budova je také poměrně členitá.
Výstupy:
- Celkové půdorysy jednotlivých podlaží
- Půdorysy jednotlivých podlaží se vzduchotechnikou
- Půdorysy jednotlivých podlaží s instalacemi vody, odpadu a topení
- Půdorysy jednotlivých podlaží s elektroinstalacemi slaboproud
- Půdorysy jednotlivých podlaží s elektroinstalacemi silnoproud
- Tabulka místností - s informacemi o účelu místnosti, plochy, informace o mater. podlah a stěn


























